S VNÚTORNÝM OVLÁDANÍM
Skelet je železobetónový monolitický odliatok
Rozmery (DxŠxV): 4800 x 2800 x 3500 mm
Transformátor: 50-1600 kVA
Hmotnosť (s transformátorom): cca 28 000 kg
Skelet je železobetónový monolitický odliatok
Rozmery (DxŠxV): 4800 x 2400 x 3500 mm
Transformátor: 50-1000 kVA
Hmotnosť (s transformátorom): cca 20 000 kg
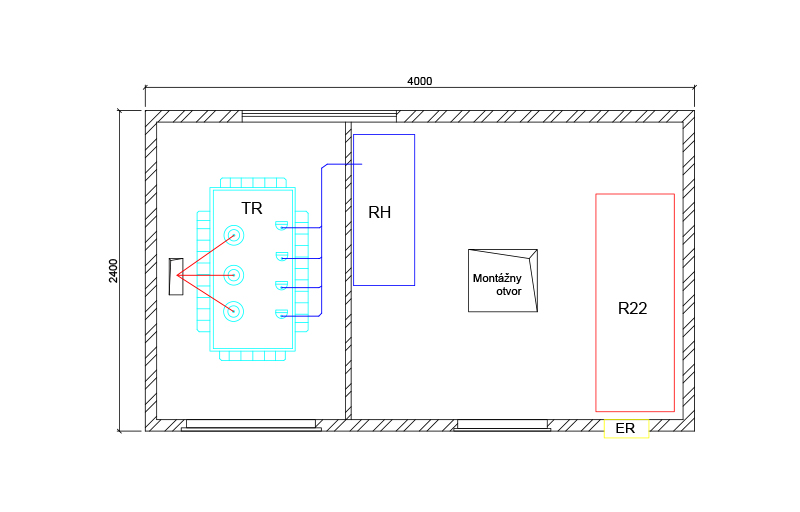
Skelet je železobetónový monolitický odliatok
Rozmery (DxŠxV): 4000 x 2400 x 3500 mm
Transformátor: 50-630 kVA
Hmotnosť (s transformátorom): cca 18 000 kg
Skelet je železobetónový monolitický odliatok
Rozmery (DxŠxV): 6000 x 2800 x 3500 mm
Transformátor: 50-1600 kVA
Hmotnosť (s transformátorom): cca 28 000 kg
Skelet je železobetónový monolitický odliatok
Rozmery (DxŠxV): 5000 x 3000 x 3500 mm
Transformátor: 2x 50-1000 kVA
Hmotnosť (s transformátorom): cca 30 000 kg
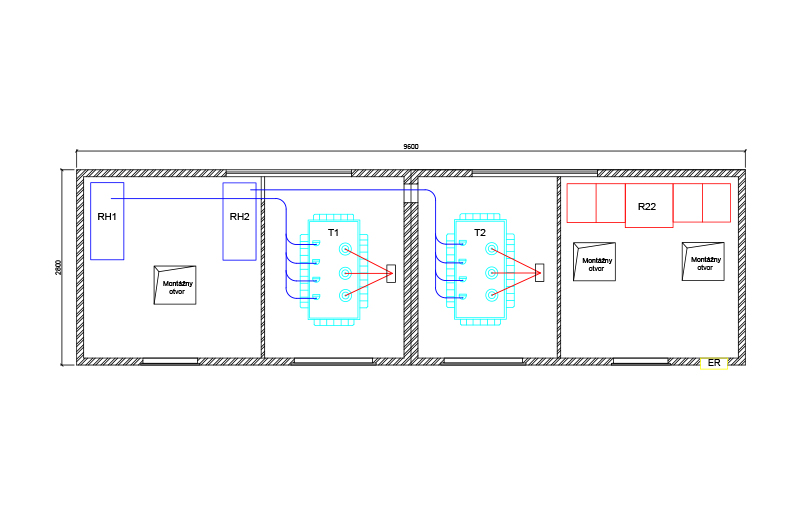
Skelet je železobetónový monolitický odliatok
Rozmery (DxŠxV): 6400 x 3000 x 3500 mm
Transformátor: 2x 50-1000 kVA
Hmotnosť (s transformátorom): cca 38 500 kg
Skelet je železobetónový monolitický odliatok
Rozmery (DxŠxV): 2kusy 4800 x 2800 x 3500 mm zložené do kocky alebo obdĺžnika
Transformátor: 2x 50-1600 kVA
Hmotnosť (s transformátorom): cca 45 000 kg
Skelet je železobetónový monolitický odliatok
Rozmery (DxŠxV): 2kusy 4800 x 2800 x 3500 mm zložené do kocky alebo obdĺžnika
Transformátor: 2x 50-1600 kVA
Hmotnosť (s transformátorom): cca 45 000 kg
Skelet je železobetónový monolitický odliatok
Rozmery (DxŠxV): 2kusy 4800 x 2800 x 3500 mm zložené do kocky alebo obdĺžnika
Transformátor: 2x 50-1600 kVA
Hmotnosť (s transformátorom): cca 45 000 kg
Skelet je železobetónový monolitický odliatok
Rozmery (DxŠxV): 3100 x 2700 x 3247 mm
Transformátor: 50-630 kVA (vol. do 1000 kVA)
Hmotnosť (prázdneho): cca 13 600 kg
Skelet je železobetónový monolitický odliatok
Rozmery (DxŠxV): 5000 x 3100 x 3450 mm
Transformátor: 2x 50-1000 kVA
Hmotnosť (prázdneho): cca 24 500 kg
VN rozvádzače:
Naša spoločnosť je dodávateľom renomovaných rozvádzačov vysokého napätia pre svojich zákazníkov. Pre cenovú ponuku nás kontaktujte. Výhodou našej spoločnosti je, že zariadenia sú skladom a k odberu do 24 hodín.- ABB SafeRing DeF, CCF, CCFF, DeV, CCV, SafePlus
- Schneider Electric RM6, SM6
- Siemens 8DJH
- Efacec Normafix, Fluorfix
- EATON Xiria
- Ormazabal GA, GAE
Transformátory:
Naša spoločnosť je dodávateľom renomovaných transformátorov pre svojich zákazníkov. Pre cenovú ponuku nás kontaktujte. Výhodou našej spoločnosti je, že zariadenia sú skladom a k odberu do 24 hodín.Základné rozdelenie transformátorov:
suché, olejové, špeciálne
Rozdelenie podľa výrobcov:
ABB, Siemens, BEZ, Schneider Electric a.i.